Wohnungsmangel
Ein Wohngebiet der besonderen Art
Wohngebiet soll hohe Nachfrage bedienen
„Unsere Region boomt und wir haben deutlichen Zuzug“, sagt Matthias Huber, der Bürgermeister von Apen. Das Oberzentrum Oldenburg liegt nur 40 Kilometer entfernt, zudem verfügt der Ort über eine Bahnanbindung; entsprechend anziehend ist Apen als Wohnort und gibt es dort auch eine vergleichsweise gute Infrastruktur. Diese aber gilt es zu halten, zudem gibt es einen großen Bedarf an Wohnraum in der Gemeinde, wie Huber sagt. Vor diesem Hintergrund kam es zur Entwicklung des Gebiets Augustfehn-Hengstforde, in dem „Wohnen, Arbeit und Leben in einer Mischstruktur gleichermaßen stattfinden sollen“, wie Huber sagt. Kleinere Wohneinheiten sollen sich speziell an Senioren richten, Einfamilienhäuser an die Familien, zudem sollen ein Mehrgenerationen-Platz und ein zentraler Treffpunkt die Generationen zusammenbringen.
Zentrales Areal in der Kommune
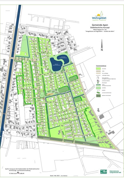
Für eine ländliche Kommune handelt es sich beim Wohngebiet Augustfehn-Hengstforde um ein vergleichsweise großes Baugebiet. Mitten in der Gemeinde gelegen, umfasst der Bebauungsplan ca. 280 Baugrundstücke. „Das Areal entspricht von der Größe her einem kompletten Ortsteil bei uns“, sagt Huber und entsprechend wichtig sei das Gebiet auch für die Identität des Ortes. Die Bauleitplanung für das 30 Hektar große Areal wurde dabei in einem gemacht, die Erschließung der einzelnen Abschnitte soll nach und nach erfolgen. „Diese Herangehensweise war für uns absolut sinnvoll: So können wir das gesamte Areal betrachten und schon jetzt Aspekte mitbedenken und einplanen, die dann in Etappen baulich umgesetzt werden“, so der Bürgermeister.

Einbindung der Bürger
Diesen Ansatz hat Huber auch den Bürgern der Gemeinde in verschiedenen Bürgerforen und Infoabenden erklärt, um Akzeptanz zu schaffen für das umfangreiche Bauprojekt. Die Botschaft: „Um als Ort attraktiv zu bleiben und die Infrastruktur halten zu können, brauchen wir weiterhin Zuzug“, so Huber. Davon würden letztlich auch all jene profitieren, die schon länger in Apen leben. Diese wüssten zudem aus Erfahrung: „In unserer Geschichte gab es immer Bewegung und so wird es auch weitergehen“, sagt Huber. Entsprechend hätten die Bürger Apens auch Verständnis gezeigt für das geplante Baugebiet.

Niedersächsische Landgesellschaft als Erschließungsträger
Die Leitung des Projekts hat die Niedersächsische Landgesellschaft mbH inne, die auch die verschiedenen Wohnungen veräußert. Für Apen ist diese Struktur von Vorteil, schließlich trage die NLG alles Kosten und bestehe keinerlei finanzielles Risiko für die Kommune. Gleichwohl nimmt die Kommune Einfluss. So sagt Huber: „Als Kommune sind wir ein sehr enger Partner der NLG und haben einen umfangreichen Erschließungsvertrag mit der Gesellschaft abgeschlossen“, sagt Huber, dem besonders wichtig ist, dass die Gewinnmaximierung nicht im Vordergrund steht.
Schwerpunkt auf Nachhaltigkeit und Klimaschutz
Um das neue Wohngebiet möglichst nachhaltig aufzustellen, wurden verschiedene Partner mit ins Boot geholt, darunter die AOK Niedersachsen, der Niedersächsische Städte- und Gemeindebund und der Energie- und Kommunikationsdienstleister EWE. Einer der wichtigsten Ansätze, um im Wohngebiet den primären Energiebedarf zu senken, ist die geplante zentrale Wärmeversorgung. Technisch bedeutet das: Eine Heizzentrale mit drei Blockheizkraftwerken und drei Gas-Brennwertkesseln mit je einer Leistung von 600 Kilowatt versorgen das Quartier mit Energie. Strom- und Wärmeerzeugung in den Blockheizkraftwerken sind hierbei gekoppelt und hocheffizient, mit der Folge, dass im Vergleich zu einer herkömmlichen Wärmeerzeugung und Stromversorgung CO₂-Emissionen eingespart werden. Die entstandene Wärme wird über ein Nahwärmenetz im nahezu gesamten Quartier verteilt, eine EWE-Trafostation bindet das Quartier in die lokale Stromversorgung ein. Außerdem wird der im Blockheizkraftwerk erzeugte Strom direkt in das Stromnetz eingespeist.

Zentrale Wärmeversorgung für alle Haushalte
Durch ein 7,5 Kilometer langes Verteilnetz mit Hausanschlüssen und Übergabestationen in den angeschlossenen Gebäuden sind die verschiedenen Wohneinheiten im Quartier alle an das Nahwärmenetz angeschlossen. Dadurch werden kein Schornstein und keine Heizungsanlage mehr benötigt und die Wärme wird auch für die Warmwasserversorgung in Küche und Bad verwendet. Ein weiterer Vorteil dieses Systems: Beim Bau des Nahwärmenetzes verlegt die EWE Glasfaserleitungen gleich mit.
Innovatives Beleuchtungskonzept
Ergänzend zu den weiteren Neuerungen wird im Wohngebiet Augustfehn-Hengstforde ein besonderes Beleuchtungskonzept in den öffentlichen Bereichen wie den Plätzen und Straßen umgesetzt. Dadurch soll der Energieverbrach reduziert werden, ohne aber dass dabei Abstriche bei der Sicherheit gemacht werden. Partner der Gesellschaft ist ein Unternehmen, das eine Straßenbeleuchtung mit mitlaufendem Licht installiert. Dies bedeutet in der Praxis: Ein Radarsensor erfasst die sich nähernden Fahrzeuge oder Fußgänger und kommuniziert mit den benachbarten Leuchten, in Folge wird die Lichtintensität erhöht. Dabei erkennt der Sensor, ob es sich um Fahrzeuge oder Personen handelt und regelt entsprechend die Beleuchtungsintensität. Nach einer gewissen Zeit ohne Bewegung verringert sich die Lichtintensität wieder.
Aktueller Stand und Ausblick
Noch befindet sich das Wohngebiet Augustfehn-Hengstforde mitten im Bau, wobei die ersten rund 100 Personen bereits in die neu geschaffenen Wohnungen eingezogen sind. Zwei Bauabschnitte mit rund 90 Grundstücken sind bereits erschlossen und vermarktet, der dritte Bauabschnitt soll in diesem Jahr erschlossen werden. Für Huber ist die Vision schon jetzt klar: „Das neue Wohngebiet soll auf keinen Fall nur reine Schlafstätte sein, sondern sich im Ort integrieren und ein bunter und attraktiver Teil unseres gesamten Gemeindegebiets werden“.
Infos zum aktuellen Stand beim Wohngebiet Augustfehn-Hengstforde hier

